Cotiza tu unidad

Departamentos llave en mano desde 2.8MDP en Playa del Carmen

Invierte en un desarrollo boutique diseñado para generar ingresos pasivos. Estilo de vida caribeño con domótica integrada y rentabilidad comprobada.

Por qué invertir en Amare:

Amare Playa es un exclusivo desarrollo de solo 20 apartamentos pensados estratégicamente para maximizar tu patrimonio.

Domótica y seguridad inteligente

Control absoluto y seguridad avanzada

Acabados Premium

Diseño sofisticado con materiales duraderos

Llave en mano

Totalmente amueblado y equipo

Exclusividad

Solo 20 unidades boutique

Controla tu departamento desde cualquier lugar

Los departamentos de Amare integran domótica inteligente, permitiendo controlar iluminación, clima y accesos de forma remota. Esta tecnología mejora la experiencia del huésped y facilita la operación en renta vacacional.

Interior Amare Playa

Conexión Inalámbrica

+

Seguridad Avanzada

+

Iluminación Inteligente

+

Climatización con tecnología inverter

+

Modelos y Planos

Departamentos con distribuciones optimizadas, listos para que los decores y comiences a generar retornos.

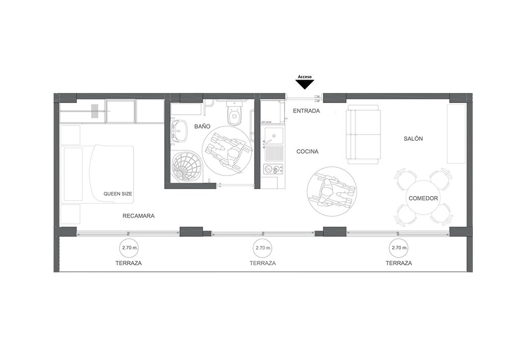
Unidad PB001

Unidad PB001

2 Recámaras 2 Baños 7.55 m2 Terraza Sala de TV

92.23 m2 Totales

Unidad PB001

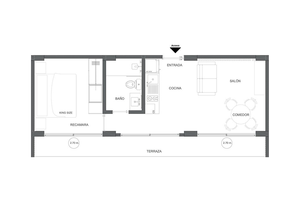
Unidad PB002

2 Recámaras 2 Baños 14.34 m2 Terraza Sala de TV

95.38 m2 Totales

Unidad PB001

Unidad 103

* Amigable para personas con movilidad reducida

1 Recámara 1 Baño Terraza 10.8m² Sala de TV

50.76 m² Totales

Unidad PB001

Unidad
101,
201,
301,
401,
501,
601

1 Recámara 1 Baño 3.97 m2 Terraza Sala de TV

47.31 m2 Totales

Unidad PB001

Unidad
203,
303,
403,
503,
603

1 Recámara 1 Baño 10.8 m2 Terraza Sala de TV

50.76 m² Totales

Unidad PB001

Unidad
102,
202,
302,
402,
502,
602

1 Recámara 1 Baño 12.61 m2 Terraza Sala de TV

56.73 m2 Totales

Desliza

Amenidades y servicios que suman

Comodidad, tecnología y servicios que impulsan el valor de tu inversión. Espacios comunes diseñados para que tus huéspedes dejen reseñas de 5 estrellas.

Roof Pool & Camastros

Vistas exclusivas para relajarse

Roof Bar & Sports Bar

Entretenimiento sin salir de casa

Wi-Fi en Áreas Comunes

Conectividad total en todo momento

Seguridad 24/7

Tranquilidad garantizada

Pet Friendly

Viajeros con mascotas

Laundry

Estancias largas

Ubicación Privilegiada

Playa del Carmen, Quintana Roo

Entorno Amare Playa

7 minutos caminando

Home Depot

12 minutos caminando

Acceso a la playa

9 minutos caminando

Chedraui selecto

6 minutos en auto

Gasolinera

9 minutos en auto

Cocobongo

10 minutos en auto

Embarcadero

5 minutos caminando

Quinta Avenida

Desarrollador

Constructor

Be+ Ingeniería

Gerenciamiento

Comercialización